Venta Departamentos de 2 Ambientes - Villa del Parque

Apartamento · 2 ambientes · 1 dormitorios · 2 baños · 62 m²

Av. Nazca 2300, Villa del Parque, Capital Federal
USD 120.600
0
En venta

Características principales de la propiedad

Tipo

Apartamento

Dormitorios

1

Baños

2

Ambientes

2

Área Total

62

Área Cubierta

56

Publicado

2 de marzo de 2023

Descripción

NAZCA GOLD - Av. Nazca 2370 (POZO) Edificio desarrollado en planta baja y 9 pisos con 4 unidades por piso. Unidades de vivienda divisibles en venta a estrenar de 1, 1 1/2 y 2 ambientes. Apto profesional. Amplio local con sótano. Sum con parrilla, piscina y solarium. Agua caliente central. Cocina con...

Características

A estrenarApto profesionalBalconPiletaSUMParrillaSolarium

Ubicación

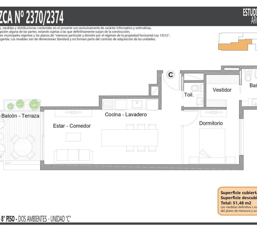
Planos

Plano 1
Plano 2
Plano 3

Análisis de mercado

Historial de Precios

Evolución del precio desde la publicación original

USD 120.600
Precio actual
Esta propiedad subió un 12059900.0% su precio desde que se publicó
2 mar - 26 sept
+USD 120.599(+12059900.0%)
Precio Original
USD 1
Precio Actual
USD 120.600
Cambios de Precio
2

Información del agente

I

Inmobiliaria

¿Sos de esta inmobiliaria?

Reclamá tu perfil gratis y conseguí más leads calificados con IA. Sin comisiones, sin límites.

Conocer más

Información sobre los datos

Los derechos de los datos de esta propiedad pertenecen a la inmobiliaria correspondiente. Roomix utiliza múltiples fuentes de portales inmobiliarios como ZonaProp, Argenprop, Mercado Libre y otros para indexar y mostrar propiedades disponibles en Argentina. Esta información se presenta únicamente con fines informativos y de búsqueda.

Propiedades cercanas

Propiedades similares