Emprendimiento Araoz y Jufre

Apartamento · 3 ambientes · 2 baños · 110 m²

Araoz Y Jufre al 300, Palermo, Capital Federal
USD 329.000
0
En venta

Características principales de la propiedad

Tipo

Apartamento

Dormitorios

0

Baños

2

Ambientes

3

Área Total

110

Área Cubierta

70

Publicado

1 de abril de 2025

Descripción

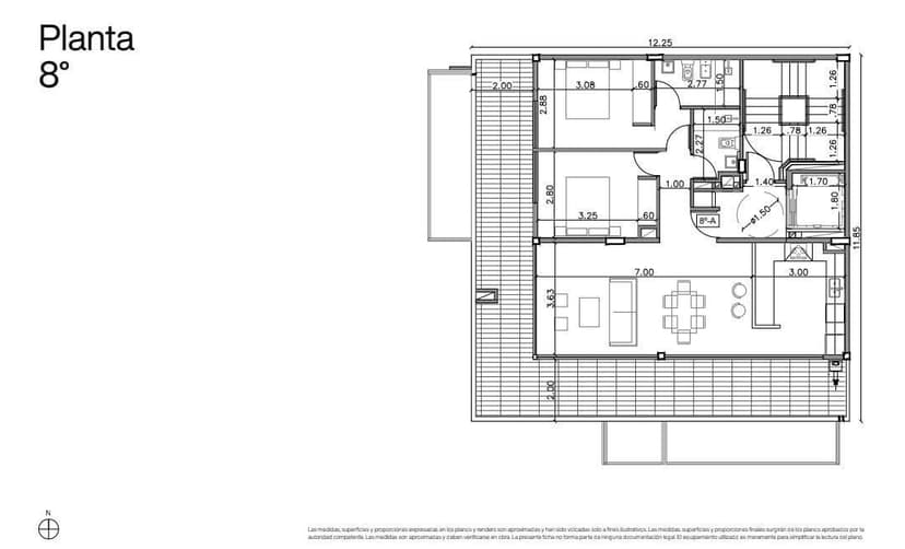
JUFRE 300 EDIFICIO EL PRECIO DE ÈSTA PUBLICACIÒN CORRESPONDE A LA ÙNICA UNIDAD FUNCIONAL EN ESQUINA DE 3 AMBIENTES UBICADA EN EL 8º PISO. SUP TOTAL: 110 m2, SUP CUBIERTA: 70m2, BALCÒN: 40 m2.¡CONSULTÀ LOS VALORES, UBICACIÒN, MTS CUB Y TOTALES DE CADA UNIDAD EN LA ÙLTIMA IMÀGEN DE LA PUBLICACIÒN!COMP...

Características

BalconApto creditoCon expensasParrillaSUMSolarium

Ubicación

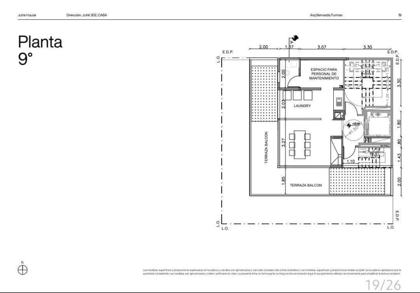
Planos

Plano 1
Plano 2
Plano 3
Plano 4
Plano 5

Análisis de mercado

Historial de Precios

Evolución del precio desde la publicación original

USD 329.000
Precio actual
Esta propiedad bajó un 28.5% su precio desde que se publicó
1 abr - 25 sept
USD -131.000(-28.5%)
Precio Original
USD 460.000
Precio Actual
USD 329.000
Cambios de Precio
2

Información del agente

I

Inmobiliaria

¿Sos de esta inmobiliaria?

Reclamá tu perfil gratis y conseguí más leads calificados con IA. Sin comisiones, sin límites.

Conocer más

Información sobre los datos

Los derechos de los datos de esta propiedad pertenecen a la inmobiliaria correspondiente. Roomix utiliza múltiples fuentes de portales inmobiliarios como ZonaProp, Argenprop, Mercado Libre y otros para indexar y mostrar propiedades disponibles en Argentina. Esta información se presenta únicamente con fines informativos y de búsqueda.

Propiedades cercanas

Propiedades similares