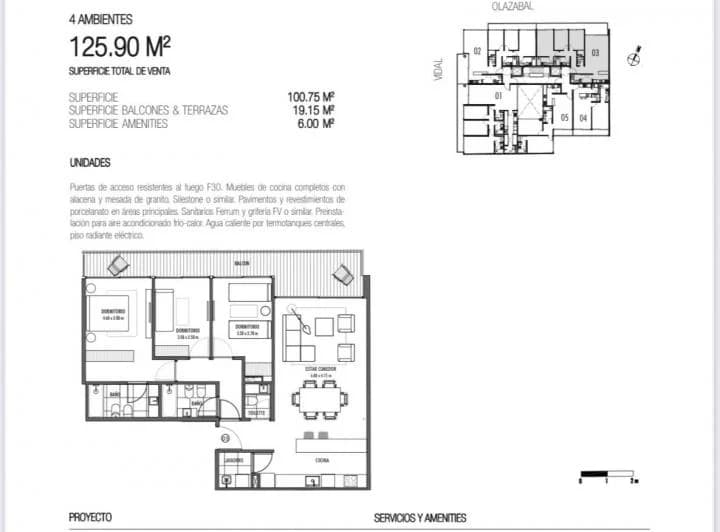
Apartamento · 4 ambientes · 3 dormitorios · 2 baños · 125 m²
Tipo
Apartamento
Dormitorios
3
Baños
2


¿Sos de esta inmobiliaria?
Reclamá tu perfil gratis y conseguí más leads calificados con IA. Sin comisiones, sin límites.
Soy el dueño de esta inmobiliaria y quiero reclamar mi perfilLos derechos de los datos de esta propiedad pertenecen a la inmobiliaria correspondiente. Roomix utiliza múltiples fuentes de portales inmobiliarios como ZonaProp, Argenprop, Mercado Libre y otros para indexar y mostrar propiedades disponibles en Argentina. Esta información se presenta únicamente con fines informativos y de búsqueda.
Ambientes
4
Área Total
125 m²
Área Cubierta
100 m²
Antigüedad
0 años
Publicado
Hace 19 días