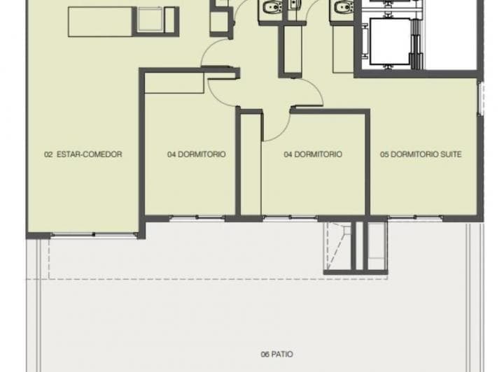
Condos Paddock II - Fisherton - JJ Paso 7770 - Tor… - Roomix