Dpto. a Estrenar de Dos Dorm. en Nueva Córdoba

Apartamento · 4 ambientes · 2 dormitorios · 1 baños · 70 m²

Obispo Trejo 1280, Nueva Córdoba, Córdoba
USD 200.000
0
En venta

Características principales de la propiedad

Tipo

Apartamento

Dormitorios

2

Baños

1

Ambientes

4

Área Total

70

Área Cubierta

70

Publicado

16 de agosto de 2023

Descripción

Petrini Inmobiliaria vende: Excelente dpto. de dos dormitorios a estrenar en zona privilegiada de Nva. Córdoba. ENTREGA INMEDIATA. El edificio se ubica en calle Obispo Trejo 1280. En el mismo tenemos varias tipologías en v...

Características

A estrenarCochera

Ubicación

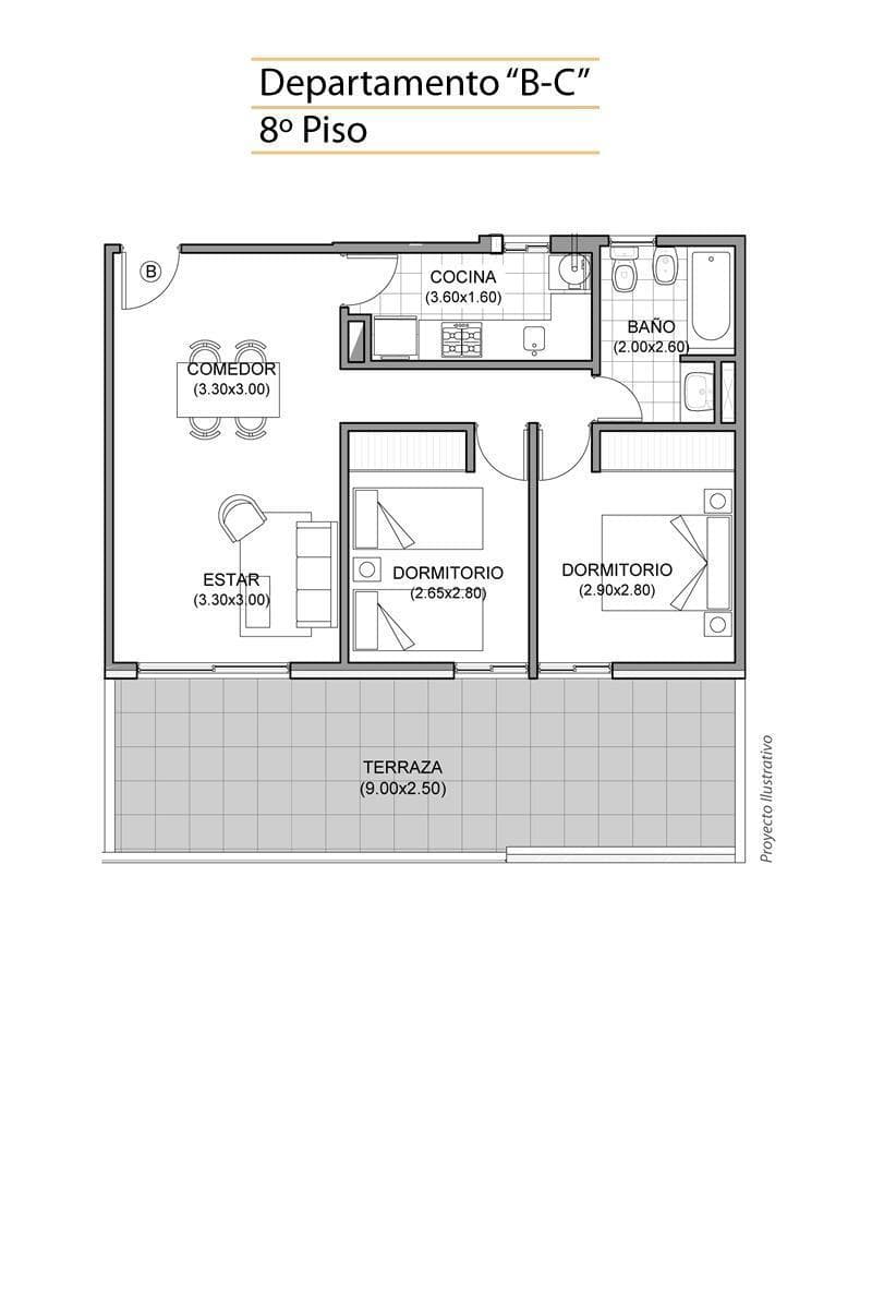
Planos

Plano 1

Análisis de mercado

Historial de Precios

Evolución del precio desde la publicación original

USD 200.000
Precio actual
Esta propiedad subió un 11.7% su precio desde que se publicó
16 ago - 11 oct
+USD 21.000(+11.7%)
Precio Original
USD 179.000
Precio Actual
USD 200.000
Cambios de Precio
3

Información del agente

I

Inmobiliaria

¿Sos de esta inmobiliaria?

Reclamá tu perfil gratis y conseguí más leads calificados con IA. Sin comisiones, sin límites.

Conocer más

Información sobre los datos

Los derechos de los datos de esta propiedad pertenecen a la inmobiliaria correspondiente. Roomix utiliza múltiples fuentes de portales inmobiliarios como ZonaProp, Argenprop, Mercado Libre y otros para indexar y mostrar propiedades disponibles en Argentina. Esta información se presenta únicamente con fines informativos y de búsqueda.

Propiedades cercanas

Propiedades similares