Venta Depto 4 Amb Frente a Refaccionar

Apartamento · 4 ambientes · 2 baños · 137 m²

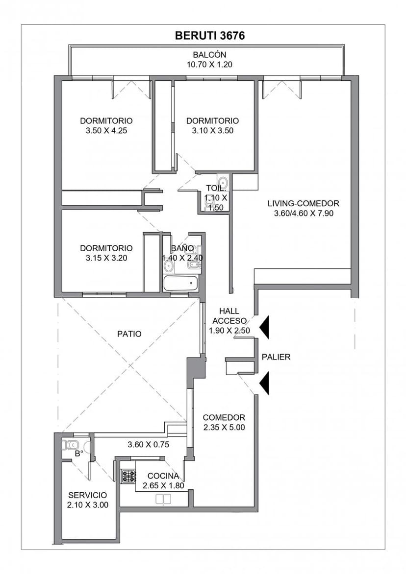
Beruti 3676, Palermo, Capital Federal
USD 239.000
0
En venta

Características principales de la propiedad

Tipo

Apartamento

Dormitorios

0

Baños

2

Ambientes

4

Área Total

137

Área Cubierta

120

Antigüedad

60 años

Publicado

31 de julio de 2018

Descripción

Amplio departamento de 4 ambientes a refaccionar en espectacular zona, a dos cuadras del Alto Palermo. Es un semipiso ubicado en el quinto piso al frente. Posee calefacción central.

Características

Ideal para renovacionCalefaccion por radiadorVista al frente

Ubicación

Planos

Plano 1

Análisis de mercado

Información del agente

I

Inmobiliaria

¿Sos de esta inmobiliaria?

Reclamá tu perfil gratis y conseguí más leads calificados con IA. Sin comisiones, sin límites.

Conocer más

Información sobre los datos

Los derechos de los datos de esta propiedad pertenecen a la inmobiliaria correspondiente. Roomix utiliza múltiples fuentes de portales inmobiliarios como ZonaProp, Argenprop, Mercado Libre y otros para indexar y mostrar propiedades disponibles en Argentina. Esta información se presenta únicamente con fines informativos y de búsqueda.

Propiedades cercanas

Propiedades similares