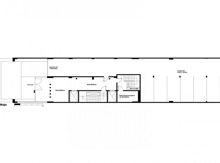
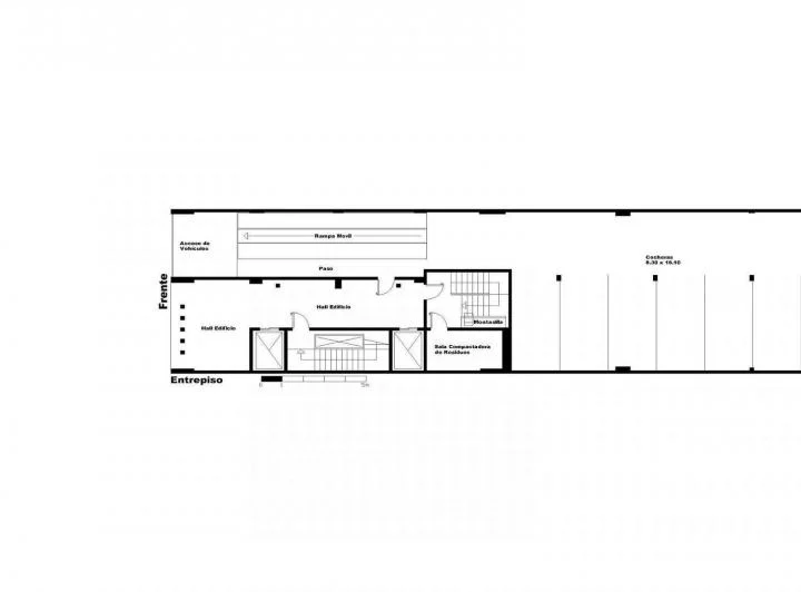
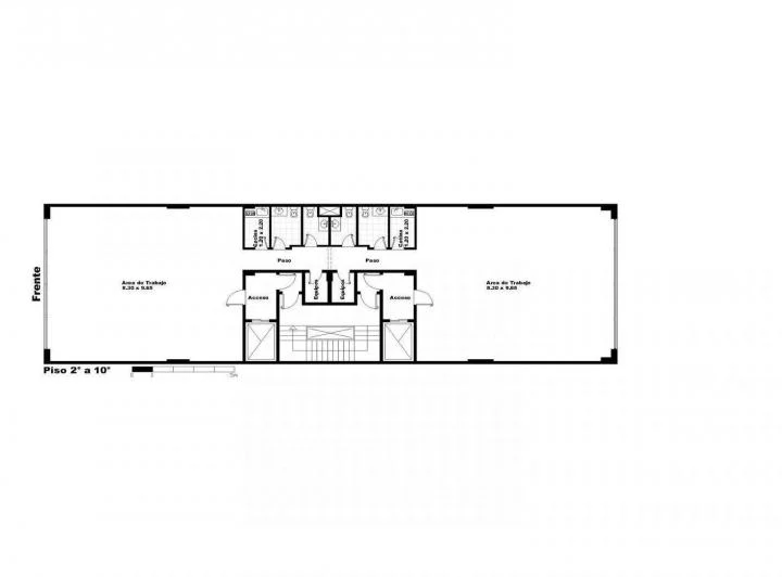
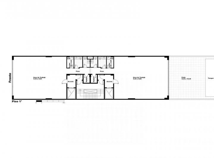
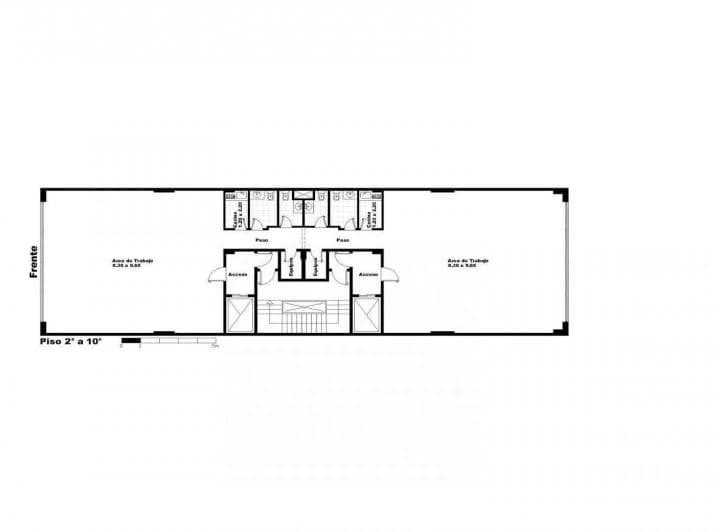
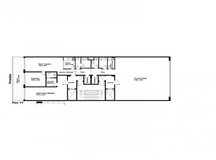
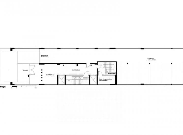
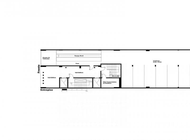
Edificio · 1 baños · 3050 m²
Edificio · 1 baños · 3050 m²
Detectamos una posible estafa: el anuncio menciona pagos en criptomonedas. Por seguridad, no mostramos el WhatsApp.
Tipo
Edificio
Dormitorios
0
Baños
1





Los derechos de los datos de esta propiedad pertenecen a la inmobiliaria correspondiente. Roomix utiliza múltiples fuentes de portales inmobiliarios como ZonaProp, Argenprop, Mercado Libre y otros para indexar y mostrar propiedades disponibles en Argentina. Esta información se presenta únicamente con fines informativos y de búsqueda.
Detectamos una posible estafa: el anuncio menciona pagos en criptomonedas. Por seguridad, no mostramos el WhatsApp.

¿Sos de esta inmobiliaria?
Reclamá tu perfil gratis y conseguí más leads calificados con IA. Sin comisiones, sin límites.
Soy el dueño de esta inmobiliaria y quiero reclamar mi perfilAmbientes
0
Área Total
3050 m²
Área Cubierta
2532 m²
Antigüedad
15 años
Publicado
Hace 3 meses