Local Comercial de 1109 m² en Complejo a Estrenar c/ Estacionamiento propio - Francisco Alvarez

Local Comercial · 1109 m²

Colectora Norte Acceso Oeste Km 44 Local 2 al 13700, Francisco Alvarez, Moreno
USD 12.000
En alquiler

Características principales de la propiedad

Tipo

Local Comercial

Dormitorios

0

Baños

0

Ambientes

0

Área Total

1109

Área Cubierta

1109

Antigüedad

0 años

Publicado

24 de octubre de 2025

Descripción

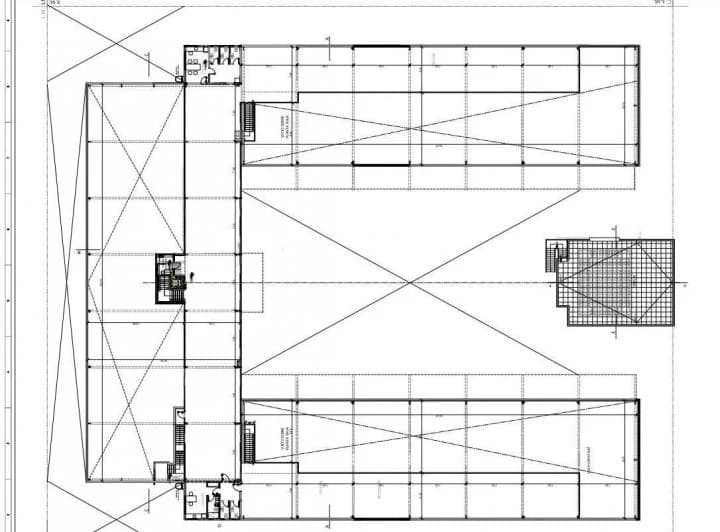
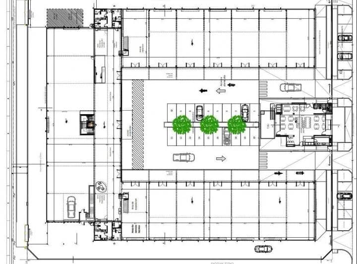
Local en Complejo comercial de 1.109 m2 cubiertos con estacionamiento propio (de uso compartido), apto para gastronomía. El inmueble está compuesto de planta baja con 825 m² más un entrepiso de 284 m² lo que completa los 1.109 m² edificados. La propiedad estará equipada con baños en planta baja y ve...

Características

Uso comercialCocinaHallOficinasPatioVestuariosCocheraApto profesionalCon garantiaCon expensasAccesible para personas con movilidad reducida

Planos

Plano 1
Plano 2
Plano 3
Plano 4

Información del agente

JPSTELLA Inversiones Inmobiliarias

JPSTELLA Inversiones Inmobiliarias

¿Sos de esta inmobiliaria?

Reclamá tu perfil gratis y conseguí más leads calificados con IA. Sin comisiones, sin límites.

Soy el dueño de esta inmobiliaria y quiero reclamar mi perfil

Información sobre los datos

Los derechos de los datos de esta propiedad pertenecen a la inmobiliaria correspondiente. Roomix utiliza múltiples fuentes de portales inmobiliarios como ZonaProp, Argenprop, Mercado Libre y otros para indexar y mostrar propiedades disponibles en Argentina. Esta información se presenta únicamente con fines informativos y de búsqueda.

Propiedades cercanas

Propiedades similares