Venta - Monoambiente de 45 m² (12 de Balcón con Parrilla!) - Emprendimiento Al Costo - Nuñez

Apartamento · 1 ambientes · 1 dormitorios · 1 baños · 45 m²

Avenida Balbin al 2600, Núñez, Capital Federal
USD 126.000
0
En venta

Características principales de la propiedad

Tipo

Apartamento

Dormitorios

1

Baños

1

Ambientes

1

Área Total

45

Área Cubierta

34

Publicado

23 de mayo de 2022

Descripción

EMPRENDIMIENTO AL COSTO Edificio 2636 FLATS: Edificio BICI FRIENDLY.- Unidades de 1,2 y 3 ambientes amplios con parrilla en balcón y espacio propio para guardar la bicicleta.Opcional cochera USD 25.000Opcional Baulera USD 4.000- Acceso a la unidad a través de un patio privado/zagu...

Características

CocheraBalconParrillaApto credito

Ubicación

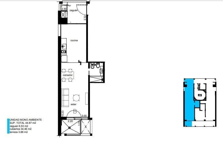
Planos

Plano 1

Análisis de mercado

Historial de Precios

Evolución del precio desde la publicación original

USD 126.000
Precio actual
Esta propiedad subió un 15.7% su precio desde que se publicó
23 may - 26 sept
+USD 17.100(+15.7%)
Precio Original
USD 108.900
Precio Actual
USD 126.000
Cambios de Precio
2

Información del agente

I

Inmobiliaria

¿Sos de esta inmobiliaria?

Reclamá tu perfil gratis y conseguí más leads calificados con IA. Sin comisiones, sin límites.

Conocer más

Información sobre los datos

Los derechos de los datos de esta propiedad pertenecen a la inmobiliaria correspondiente. Roomix utiliza múltiples fuentes de portales inmobiliarios como ZonaProp, Argenprop, Mercado Libre y otros para indexar y mostrar propiedades disponibles en Argentina. Esta información se presenta únicamente con fines informativos y de búsqueda.

Propiedades cercanas

Propiedades similares