LOCAL EN VENTA Y/O ALQUILER, ZONA MICROCENTRO

Local Comercial · 2 baños · 300 m²

Maipu Y Tucuman | Microcentro, Centro / Microcentro, Capital Federal
USD 5.000
En alquiler

Características principales de la propiedad

Tipo

Local Comercial

Dormitorios

0

Baños

2

Ambientes

0

Área Total

300

Área Cubierta

205

Antigüedad

0 años

Publicado

2 de julio de 2025

Descripción

Venta y Alquiler LOCAL GASTRONÓMICO PREMIUM A ESTRENAR - DISPONIBLE MARZO 2026 | MAIPÚ & TUCUMÁN, MICROCENTRO UBICACIÓN ESTRATÉGICA * Localizado en pleno corazón del Microcentro porteño, en la esquina destacada de Maipú y Tucumán. * A metros del prestigioso shopping Galerías Pacífico. * Próxim...

Características

CocheraA estrenarIdeal para alquilerCerca de transporte publico

Ubicación

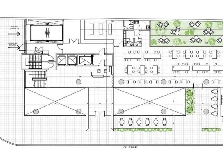
Planos

Plano 1
Plano 2

Información del agente

BAIGUN REALTY

BAIGUN REALTY

¿Sos de esta inmobiliaria?

Reclamá tu perfil gratis y conseguí más leads calificados con IA. Sin comisiones, sin límites.

Conocer más

Información sobre los datos

Los derechos de los datos de esta propiedad pertenecen a la inmobiliaria correspondiente. Roomix utiliza múltiples fuentes de portales inmobiliarios como ZonaProp, Argenprop, Mercado Libre y otros para indexar y mostrar propiedades disponibles en Argentina. Esta información se presenta únicamente con fines informativos y de búsqueda.

Propiedades cercanas

Propiedades similares