Local en Bolivar 200

Local Comercial · 1 ambientes · 1 baños · 215 m²

Excelente Local en Bolivar al 200, Monserrat, Capital Federal
USD 600.000
0
En venta

Características principales de la propiedad

Tipo

Local Comercial

Dormitorios

0

Baños

1

Ambientes

1

Área Total

215

Área Cubierta

215

Publicado

27 de octubre de 2023

Descripción

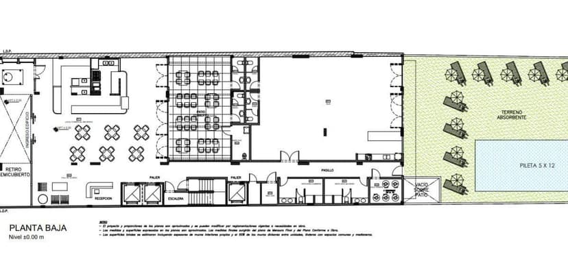
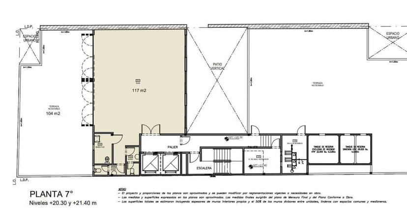
El proyecto a desarrollar tiene un subsuelo destinado a servicios; en la planta baja cuenta con una Confitería de 215 m2, el SUM (con sector de cocina y vestuarios), espacios para personal de mantenimiento (sin Portería), una piscina sobre terreno natural al fondo de la planta baja de 60m2; 78 unida...

Características

PiletaSUMNo apto para estudiantesApto credito

Ubicación

Planos

Plano 1
Plano 2
Plano 3
Plano 4
Plano 5
Plano 6
Plano 7
Plano 8

Análisis de mercado

Información del agente

I

Inmobiliaria

¿Sos de esta inmobiliaria?

Reclamá tu perfil gratis y conseguí más leads calificados con IA. Sin comisiones, sin límites.

Conocer más

Información sobre los datos

Los derechos de los datos de esta propiedad pertenecen a la inmobiliaria correspondiente. Roomix utiliza múltiples fuentes de portales inmobiliarios como ZonaProp, Argenprop, Mercado Libre y otros para indexar y mostrar propiedades disponibles en Argentina. Esta información se presenta únicamente con fines informativos y de búsqueda.

Propiedades cercanas

Propiedades similares