Casa en Venta El Molino Roldán

Casa · 3 ambientes · 2 dormitorios · 2 baños · 426 m²

Del Aire y Talacasto, Roldán, Santa Fe
USD 98.000
0
En venta

Características principales de la propiedad

Tipo

Casa

Dormitorios

2

Baños

2

Ambientes

3

Área Total

426

Área Cubierta

125

Publicado

2 de enero de 2024

Descripción

Barrio El Molino - Roldan.-Excelente casa en construcción.- El proyecto cuenta con 2/3 dormitorios con 2 baños y terreno.- La misma se realizara hasta obra gris (techo, revoques, instalación agua, electricidad, etc).-Oportunidad! ideal inversion.-Código del inmueble: CHOVer datosEncontrá todas nuest...

Características

Ideal para renovacionApto credito

Ubicación

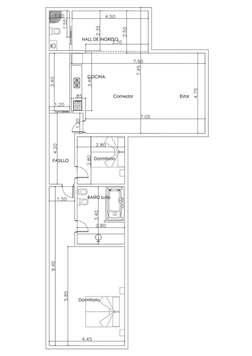
Planos

Plano 1

Análisis de mercado

Historial de Precios

Evolución del precio desde la publicación original

USD 98.000
Precio actual
Esta propiedad subió un 6.5% su precio desde que se publicó
2 ene - 28 sept
+USD 6.000(+6.5%)
Precio Original
USD 92.000
Precio Actual
USD 98.000
Cambios de Precio
3

Información del agente

I

Inmobiliaria

¿Sos de esta inmobiliaria?

Reclamá tu perfil gratis y conseguí más leads calificados con IA. Sin comisiones, sin límites.

Conocer más

Información sobre los datos

Los derechos de los datos de esta propiedad pertenecen a la inmobiliaria correspondiente. Roomix utiliza múltiples fuentes de portales inmobiliarios como ZonaProp, Argenprop, Mercado Libre y otros para indexar y mostrar propiedades disponibles en Argentina. Esta información se presenta únicamente con fines informativos y de búsqueda.

Propiedades cercanas

Propiedades similares