Venta Monoambiente en Cuotas Zona Hopital Italiano

Apartamento · 1 ambientes · 1 baños · 46 m²

LAMBARE 800. Entre Peron y Sarmiento, Almagro, Capital Federal
USD 66.400
0
En venta

Características principales de la propiedad

Tipo

Apartamento

Dormitorios

0

Baños

1

Ambientes

1

Área Total

46

Área Cubierta

29

Publicado

27 de junio de 2021

Descripción

Venta de Departamento en Almagro, Capital Federal Zona Hospital Italianoviviendas de 2 ambientes, estudios profesionales de 1 ambiente y 1 ambiente divisibleCaracterísticas del edificio- Edificio de 9 pisos.- Importante hall de entrada con revestimientos de primera calidad.- Cerramiento de blindex.-...

Características

Cerca del hospitalApto profesionalCon expensasCalefaccion por tiro balanceadoParrillaTerraza

Ubicación

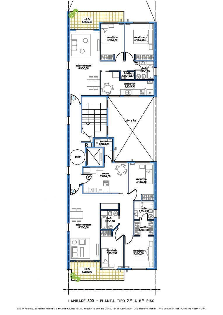
Planos

Plano 1
Plano 2
Plano 3
Plano 4

Análisis de mercado

Historial de Precios

Evolución del precio desde la publicación original

USD 66.400
Precio actual
Esta propiedad subió un 9.9% su precio desde que se publicó
27 jun - 26 sept
+USD 6.000(+9.9%)
Precio Original
USD 60.400
Precio Actual
USD 66.400
Cambios de Precio
2

Información del agente

I

Inmobiliaria

¿Sos de esta inmobiliaria?

Reclamá tu perfil gratis y conseguí más leads calificados con IA. Sin comisiones, sin límites.

Conocer más

Información sobre los datos

Los derechos de los datos de esta propiedad pertenecen a la inmobiliaria correspondiente. Roomix utiliza múltiples fuentes de portales inmobiliarios como ZonaProp, Argenprop, Mercado Libre y otros para indexar y mostrar propiedades disponibles en Argentina. Esta información se presenta únicamente con fines informativos y de búsqueda.

Propiedades cercanas

Propiedades similares