Departamento Monoambiente. | Jose Marmol 891

Apartamento · 1 ambientes · 1 baños · 30 m²

JOSE MARMOL 891. Entre Av. carlos calvo y Estados unidos, Boedo, Capital Federal
USD 62.000
0
En venta

Características principales de la propiedad

Tipo

Apartamento

Dormitorios

0

Baños

1

Ambientes

1

Área Total

30

Área Cubierta

27

Antigüedad

3 años

Publicado

14 de enero de 2025

Descripción

Venta de Departamento MONOAMBIENTE en Boedo, Capital Federal. Semipiso. Excelente ubicación, a dos cuadras de Av San Juan y 2 cuadras de Av La Plata. Gran variedad de medios de transporte, amplias lineas de colectivos, estación de subte linea E Av La Plata, comercios y establecimientos educativos. D...

Características

Cerca de transporte publicoBalcon

Ubicación

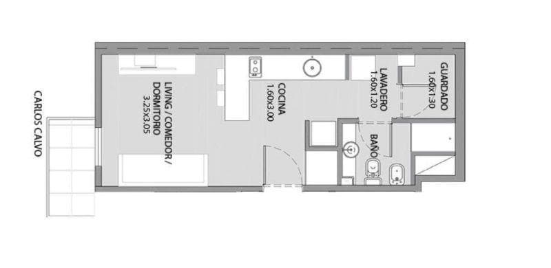
Planos

Plano 1

Análisis de mercado

Información del agente

MERCHAN & GLUCK NEGOCIOS INMOBILIARIOS SRL

MERCHAN & GLUCK NEGOCIOS INMOBILIARIOS SRL

¿Sos de esta inmobiliaria?

Reclamá tu perfil gratis y conseguí más leads calificados con IA. Sin comisiones, sin límites.

Conocer más

Información sobre los datos

Los derechos de los datos de esta propiedad pertenecen a la inmobiliaria correspondiente. Roomix utiliza múltiples fuentes de portales inmobiliarios como ZonaProp, Argenprop, Mercado Libre y otros para indexar y mostrar propiedades disponibles en Argentina. Esta información se presenta únicamente con fines informativos y de búsqueda.

Propiedades cercanas

Propiedades similares