- Dos Ambientes Al Contrafrente con Balcon Entrega Inmediata

Apartamento · 2 ambientes · 1 dormitorios · 1 baños · 50 m²

Hidalgo 700 905°, Caballito, Capital Federal
USD 167.372
0
En venta

Características principales de la propiedad

Tipo

Apartamento

Dormitorios

1

Baños

1

Ambientes

2

Área Total

50

Área Cubierta

48

Publicado

13 de diciembre de 2022

Descripción

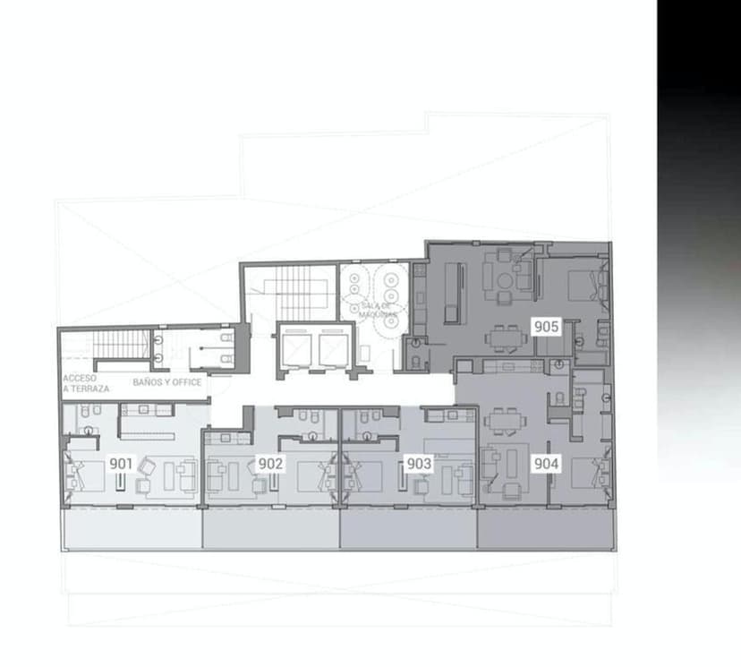
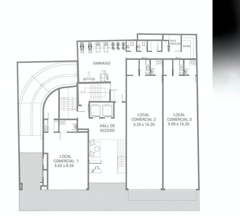
Dos ambientes al contrafrente con balcón Piso 9 05 Entrega INMEDIATADescripciónDepartamentos de 25 a 55m272 DEPARTAMENTOSEDIFICIO DE 10 PISOS ARQUITECTURA CONTEMPORANEAUNIDADES DE 1Y 2 AMBIENTES CON MULTIPLES AMETIES Y ESPACIOS COMUNESInformación adicional* DIRECCIÓN EXACTA DEL EMPRENDIMIENTO: HIDA...

Características

Sin expensas

Ubicación

Planos

Plano 1
Plano 2
Plano 3
Plano 4
Plano 5
Plano 6
Plano 7
Plano 8
Plano 9

Análisis de mercado

Historial de Precios

Evolución del precio desde la publicación original

USD 167.372
Precio actual
Esta propiedad subió un 1.3% su precio desde que se publicó
13 dic - 26 sept
+USD 2.155(+1.3%)
Precio Original
USD 165.217
Precio Actual
USD 167.372
Cambios de Precio
2

Información del agente

I

Inmobiliaria

¿Sos de esta inmobiliaria?

Reclamá tu perfil gratis y conseguí más leads calificados con IA. Sin comisiones, sin límites.

Conocer más

Información sobre los datos

Los derechos de los datos de esta propiedad pertenecen a la inmobiliaria correspondiente. Roomix utiliza múltiples fuentes de portales inmobiliarios como ZonaProp, Argenprop, Mercado Libre y otros para indexar y mostrar propiedades disponibles en Argentina. Esta información se presenta únicamente con fines informativos y de búsqueda.

Propiedades cercanas

Propiedades similares