Departamento en Venta Ubicado en Caballito, Capital Federal, Buenos Aires

Apartamento · 3 ambientes · 2 dormitorios · 1 baños · 65 m²

Río de Janeiro 500, Caballito, Capital Federal
USD 258.000
0
En venta

Características principales de la propiedad

Tipo

Apartamento

Dormitorios

2

Baños

1

Ambientes

3

Área Total

65

Área Cubierta

65

Publicado

16 de agosto de 2024

Descripción

Río 4 El proyecto se encuentra ubicado sobre la calle Rio de Janeiro, entre la Avenida Diaz Vélez y la calle Bartolomé Mitre, y el contrafrente hacia la calle Yatay.El tejido actual que prevalece en la manzana es de tipologías edilicias varias con alturas entre 2 a 14 pisos. La ti...

Características

CocheraApto profesionalA estrenarParrillaSolariumPiletaSUMCerca de transporte publicoBalconPapeles al dia

Ubicación

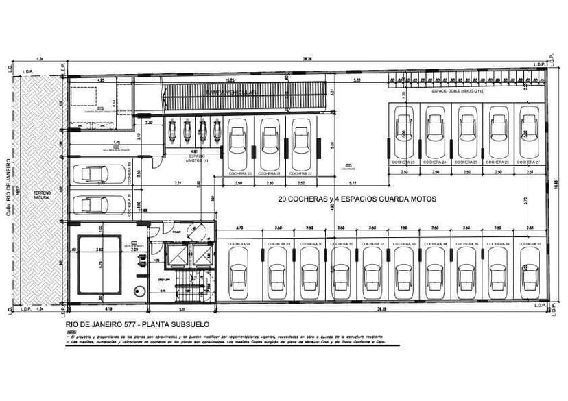
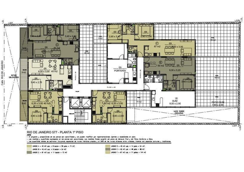
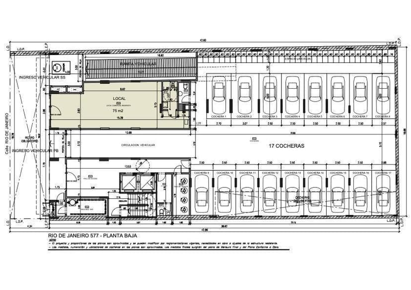
Planos

Plano 1
Plano 2
Plano 3
Plano 4
Plano 5

Análisis de mercado

Información del agente

CAIAN Negocios Inmobiliarios

CAIAN Negocios Inmobiliarios

¿Sos de esta inmobiliaria?

Reclamá tu perfil gratis y conseguí más leads calificados con IA. Sin comisiones, sin límites.

Conocer más

Información sobre los datos

Los derechos de los datos de esta propiedad pertenecen a la inmobiliaria correspondiente. Roomix utiliza múltiples fuentes de portales inmobiliarios como ZonaProp, Argenprop, Mercado Libre y otros para indexar y mostrar propiedades disponibles en Argentina. Esta información se presenta únicamente con fines informativos y de búsqueda.

Propiedades cercanas

Propiedades similares