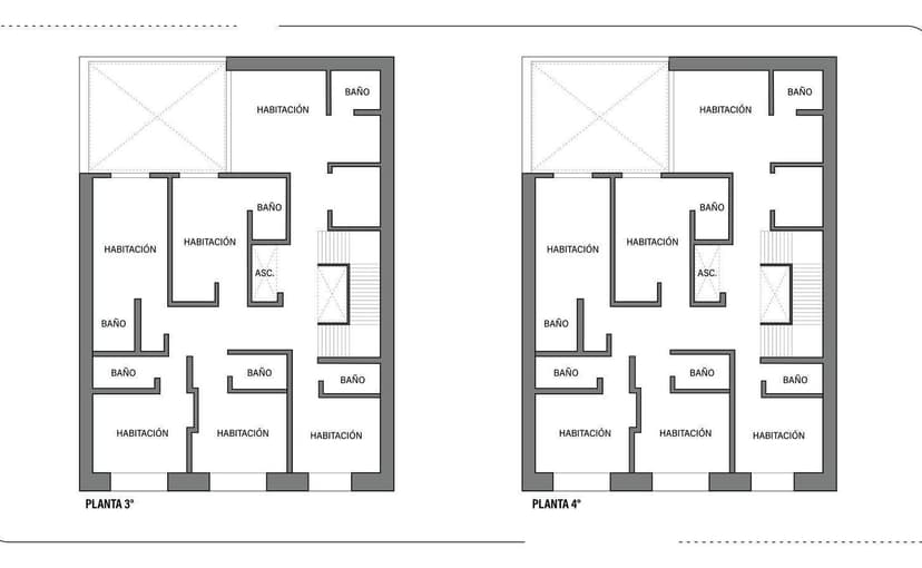
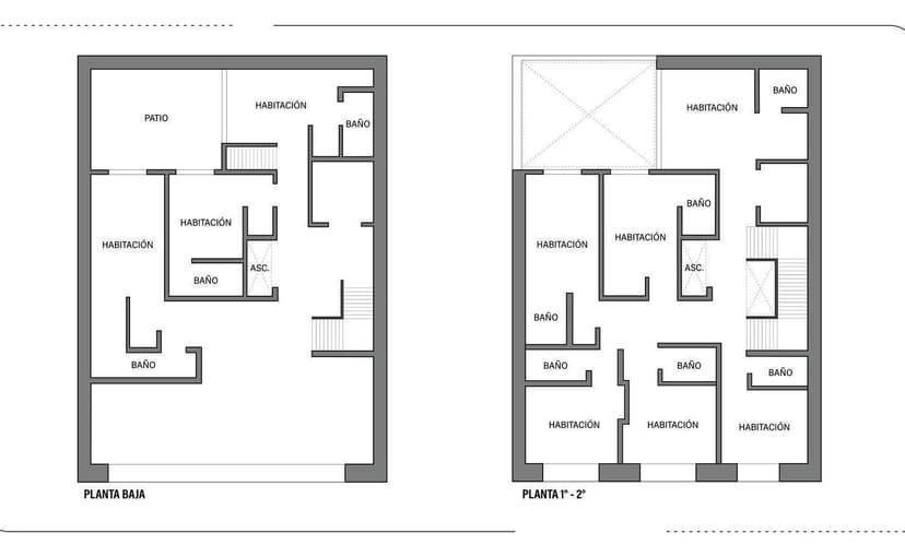
Hotel · 26 baños · 700 m²
Tipo
Hotel
Dormitorios
0
Baños
26
Ambientes
0
Área Total
700 m²
Área Cubierta
700 m²
Antigüedad
45 años
Publicado
Hace 2 días

¿Sos de esta inmobiliaria?
Reclamá tu perfil gratis y conseguí más leads calificados con IA. Sin comisiones, sin límites.
Soy el dueño de esta inmobiliaria y quiero reclamar mi perfilLos derechos de los datos de esta propiedad pertenecen a la inmobiliaria correspondiente. Roomix utiliza múltiples fuentes de portales inmobiliarios como ZonaProp, Argenprop, Mercado Libre y otros para indexar y mostrar propiedades disponibles en Argentina. Esta información se presenta únicamente con fines informativos y de búsqueda.

