Terreno en Villa Santa Rita

Terrenos · 1 ambientes · 126 m²

Belaustegui al 2800, Villa Santa Rita, Capital Federal
USD 289.000
0
En venta

Características principales de la propiedad

Tipo

Terrenos

Dormitorios

0

Baños

0

Ambientes

1

Área Total

126

Publicado

1 de agosto de 2024

Descripción

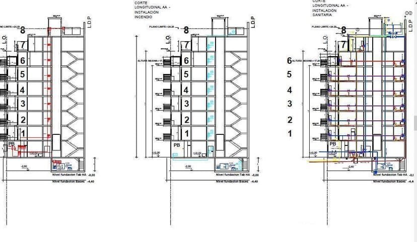
Terreno de 8,66 x 14,66, superficie total 126,8 M2 ideal para pequeño inversor/constructor, ya que el proyecto se encuentra aprobado por la Legislatura de la Ciudad de Buenos Aires.Permite la construcción con PLANOS APROBADOS de 1041,67M2, de los cuales 853,84 M2 son vendibles.La unidad de edificabi...

Características

Ideal para renovacion

Ubicación

Planos

Plano 1
Plano 2

Análisis de mercado

Información del agente

I

Inmobiliaria

¿Sos de esta inmobiliaria?

Reclamá tu perfil gratis y conseguí más leads calificados con IA. Sin comisiones, sin límites.

Conocer más

Información sobre los datos

Los derechos de los datos de esta propiedad pertenecen a la inmobiliaria correspondiente. Roomix utiliza múltiples fuentes de portales inmobiliarios como ZonaProp, Argenprop, Mercado Libre y otros para indexar y mostrar propiedades disponibles en Argentina. Esta información se presenta únicamente con fines informativos y de búsqueda.

Propiedades cercanas

Propiedades similares