Venta de Casa en San Matias

Casa · 5 ambientes · 4 dormitorios · 2 baños · 981 m²

San Matias, San Matías, Belén de Escobar
USD 445.000
+ $ 320.000 expensas
En venta

Características principales de la propiedad

Tipo

Casa

Dormitorios

4

Baños

2

Ambientes

5

Área Total

981

Área Cubierta

227

Publicado

14 de agosto de 2024

Descripción

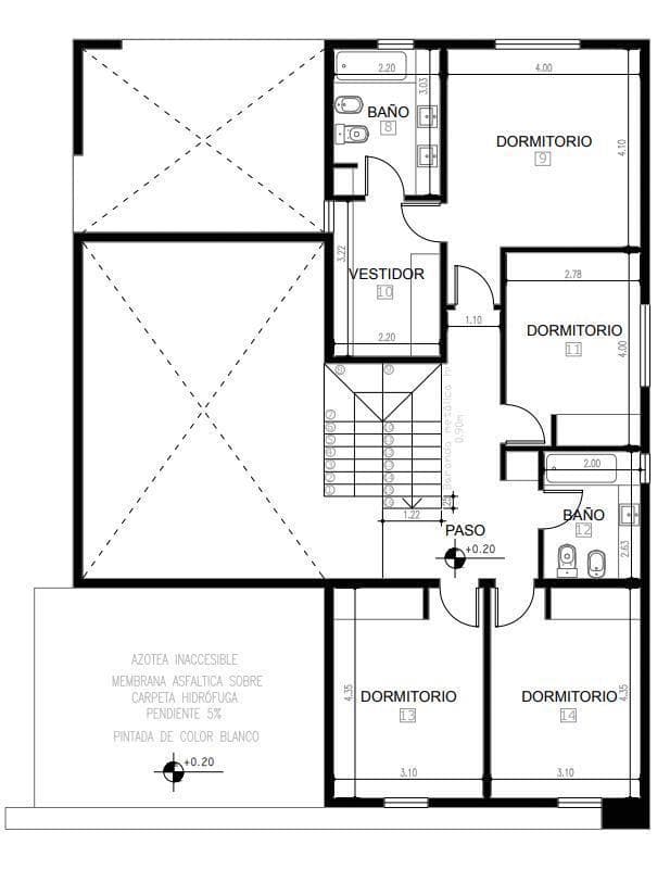
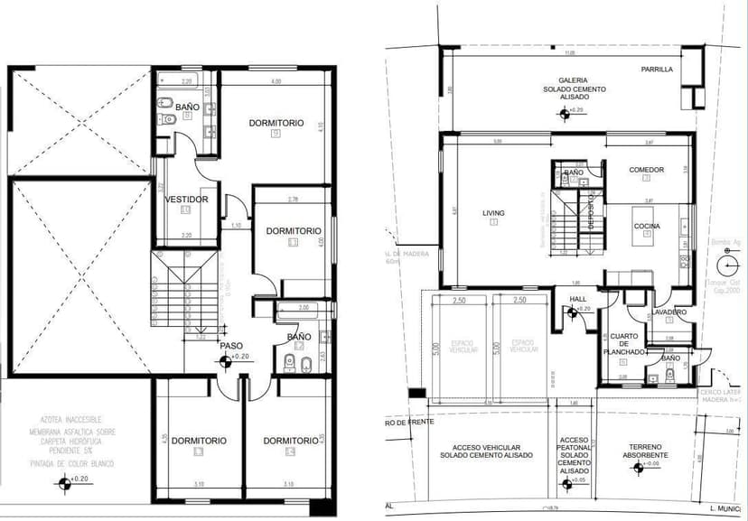
Casa construida sobre lote de 981 m2 al agua con orientación Oeste en Barrio San Matías.Descripción:PB:-Hall de recepción-Living – comedor en doble altura con salida a la galería-Toilette de recepción-Cocina con Comedor diario y salida al exterior-Lavadero independiente con salida al exterior-Depend...

Características

Orientacion oesteParrillaCerca de transporte publicoPiletaEn barrio privadoNo accesible para personas con movilidad reducida

Ubicación

Planos

Plano 1
Plano 2

Análisis de mercado

Información del agente

I

Inmobiliaria

¿Sos de esta inmobiliaria?

Reclamá tu perfil gratis y conseguí más leads calificados con IA. Sin comisiones, sin límites.

Conocer más

Información sobre los datos

Los derechos de los datos de esta propiedad pertenecen a la inmobiliaria correspondiente. Roomix utiliza múltiples fuentes de portales inmobiliarios como ZonaProp, Argenprop, Mercado Libre y otros para indexar y mostrar propiedades disponibles en Argentina. Esta información se presenta únicamente con fines informativos y de búsqueda.

Propiedades cercanas

Propiedades similares