Casa en Venta Barrio Norte La Plata 3 Dorm. 2 Baños Cochera Jardin Pileta

Casa · 5 ambientes · 3 dormitorios · 2 baños · 220 m²

36 Entre 3 Y 4, La Plata, La Plata
USD 275.000
0
En venta

Características principales de la propiedad

Tipo

Casa

Dormitorios

3

Baños

2

Ambientes

5

Área Total

220

Área Cubierta

220

Antigüedad

10 años

Publicado

5 de marzo de 2025

Descripción

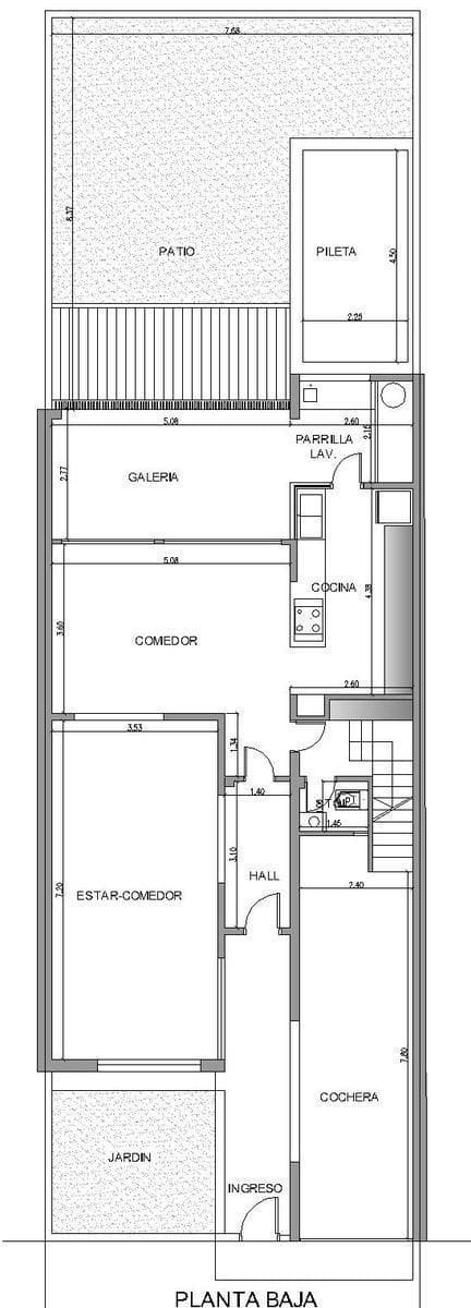
Propiedad en Zona Norte, La Plata.Excelente Ubicacion en una de las zonas mas buscadas de la ciudad.Calle 36 entre 3 y 4.Parque Pileta 2,25 x 4,50 mtsGaleria de 2,77 x 5,08 mts con cortina metalica microperforada automatizada.Parrilla con acceso directo desde la cocina y desde la galeria.Lavadero Lo...

Características

PiletaParrillaRecicladoCocheraCalefaccion por radiador

Ubicación

Planos

Plano 1
Plano 2

Análisis de mercado

Información del agente

I

Inmobiliaria

¿Sos de esta inmobiliaria?

Reclamá tu perfil gratis y conseguí más leads calificados con IA. Sin comisiones, sin límites.

Conocer más

Información sobre los datos

Los derechos de los datos de esta propiedad pertenecen a la inmobiliaria correspondiente. Roomix utiliza múltiples fuentes de portales inmobiliarios como ZonaProp, Argenprop, Mercado Libre y otros para indexar y mostrar propiedades disponibles en Argentina. Esta información se presenta únicamente con fines informativos y de búsqueda.

Propiedades cercanas

Propiedades similares