Venta casa 5 dormitorios Kentucky Club de Campo barrio privado

Casa · 6 ambientes · 4 dormitorios · 4 baños · 1200 m²

Kentucky Club de Campo, Zona 10, Funes
USD 1.100.000
En venta

Características principales de la propiedad

Tipo

Casa

Dormitorios

4

Baños

4

Ambientes

6

Área Total

1200

Área Cubierta

174

Antigüedad

0 años

Publicado

4 de julio de 2025

Descripción

Ubicada en uno de los barrios privados más prestigiosos de Funes, esta casa de estilo moderno minimalista se implanta sobre un terreno de 1.200 m² y ofrece un diseño de líneas puras y grandes ventanales, con cuidadosa integración al entorno. La planta baja cuenta con hall de ingreso en doble altura,...

Características

Muy luminosoOrientacion oesteAire acondicionadoCalefaccionCancha deportesGimnasioParrillaPiletaQuinchoSolariumSeguridad 24hsBalconCocinaComedorComedor de diarioDormitorio en suiteJardinLavaderoLivingLiving comedorPatioTerrazaToiletteVestidorInternetEncargado VigilanciaCocheraEn barrio privado

Ubicación

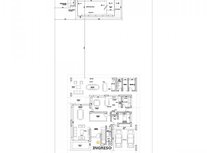
Planos

Plano 1
Plano 2
Plano 3

Análisis de mercado

Análisis de mercado no disponible

Datos insuficientes para comparación

Basado en un análisis preliminar, creemos que esta propiedad tiene datos incorrectos o insuficientes para ser comparada con otras propiedades del mercado.

Si crees que esto es un error, por favor contáctanos y podremos revisar manualmente esta propiedad.

Contáctanos:

Historial de Precios

Evolución del precio desde la publicación original

USD 1.100.000
Precio actual
Esta propiedad subió un 12.2% su precio desde que se publicó
4 jul - 24 sept
+USD 120.000(+12.2%)
Precio Original
USD 980.000
Precio Actual
USD 1.100.000
Cambios de Precio
2

Información del agente

CRESTALE PROPIEDADES S.A.

CRESTALE PROPIEDADES S.A.

¿Sos de esta inmobiliaria?

Reclamá tu perfil gratis y conseguí más leads calificados con IA. Sin comisiones, sin límites.

Conocer más

Información sobre los datos

Los derechos de los datos de esta propiedad pertenecen a la inmobiliaria correspondiente. Roomix utiliza múltiples fuentes de portales inmobiliarios como ZonaProp, Argenprop, Mercado Libre y otros para indexar y mostrar propiedades disponibles en Argentina. Esta información se presenta únicamente con fines informativos y de búsqueda.

Propiedades cercanas

Propiedades similares