1º de Mayo 1100 - Venta Monoambiente en Rosario

Apartamento · 1 ambientes · 1 baños · 23 m²

1º de Mayo y Mendoza, Distrito Centro, Rosario
USD 51.000
0
En venta

Características principales de la propiedad

Tipo

Apartamento

Dormitorios

0

Baños

1

Ambientes

1

Área Total

23

Área Cubierta

23

Antigüedad

9 años

Publicado

7 de octubre de 2024

Descripción

Departamentos a la venta en el Edificio Costa VI, 1º de Mayo 1100, entre las calles Mendoza y San Juan, zona residencial de la ciudad a pocas cuadras del Monumento Nacional a la Bandera, cercano a parques recreativos y a minutos del centro.Edificio Costa VI cuenta con dos torres de nueve pisos cada...

Características

CocheraCerca al parque

Ubicación

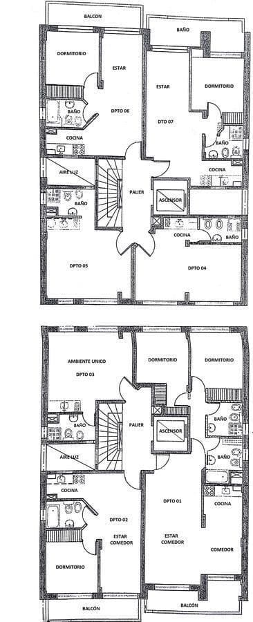
Planos

Plano 1

Análisis de mercado

Historial de Precios

Evolución del precio desde la publicación original

USD 51.000
Precio actual
Esta propiedad subió un 6.3% su precio desde que se publicó
7 oct - 25 sept
+USD 3.000(+6.3%)
Precio Original
USD 48.000
Precio Actual
USD 51.000
Cambios de Precio
2

Información del agente

I

Inmobiliaria

¿Sos de esta inmobiliaria?

Reclamá tu perfil gratis y conseguí más leads calificados con IA. Sin comisiones, sin límites.

Conocer más

Información sobre los datos

Los derechos de los datos de esta propiedad pertenecen a la inmobiliaria correspondiente. Roomix utiliza múltiples fuentes de portales inmobiliarios como ZonaProp, Argenprop, Mercado Libre y otros para indexar y mostrar propiedades disponibles en Argentina. Esta información se presenta únicamente con fines informativos y de búsqueda.

Propiedades cercanas

Propiedades similares