Emprendimiento Araoz y Jufre

Apartamento · 1 ambientes · 1 baños · 27 m²

Araoz Y Jufre al 300, Villa Crespo, Capital Federal
USD 81.000
0
En venta

Características principales de la propiedad

Tipo

Apartamento

Dormitorios

0

Baños

1

Ambientes

1

Área Total

27

Área Cubierta

27

Publicado

6 de diciembre de 2024

Descripción

JUFRE 300 EDIFICIO CON DEPARTAMENTOS DE 1, 2 y 3 AMBIENTES. ÈSTE VALOR CORRESPONDE A LA UNIDAD DE 27 M2 UBICADA EN P.B.COMPRÁ A VALORES MUY CONVENIENTES PARA USO PERSONAL O INVERSIÒN.HAY VARIAS FORMAS DE PAGO ADAPTABLES A TUS NECESIDADES.Edificio de 8 pisos con unidades de 1, 2 y 3 ambientes, todas...

Características

Apto creditoCon expensasBalconParrillaSUMSolarium

Ubicación

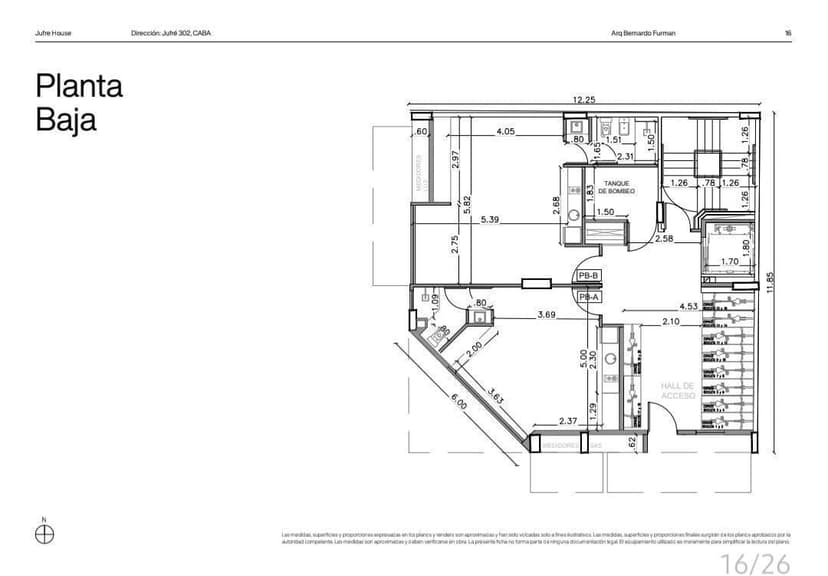
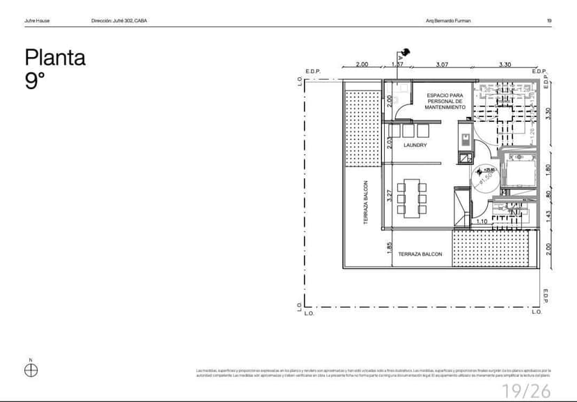
Planos

Plano 1
Plano 2
Plano 3
Plano 4
Plano 5
Plano 6
Plano 7

Análisis de mercado

Historial de Precios

Evolución del precio desde la publicación original

USD 81.000
Precio actual
Esta propiedad subió un 11.0% su precio desde que se publicó
6 dic - 25 sept
+USD 8.000(+11.0%)
Precio Original
USD 73.000
Precio Actual
USD 81.000
Cambios de Precio
2

Información del agente

I

Inmobiliaria

¿Sos de esta inmobiliaria?

Reclamá tu perfil gratis y conseguí más leads calificados con IA. Sin comisiones, sin límites.

Conocer más

Información sobre los datos

Los derechos de los datos de esta propiedad pertenecen a la inmobiliaria correspondiente. Roomix utiliza múltiples fuentes de portales inmobiliarios como ZonaProp, Argenprop, Mercado Libre y otros para indexar y mostrar propiedades disponibles en Argentina. Esta información se presenta únicamente con fines informativos y de búsqueda.

Propiedades cercanas

Propiedades similares