"Complejo Acuamarina" Departamentos de Dos Ambientes

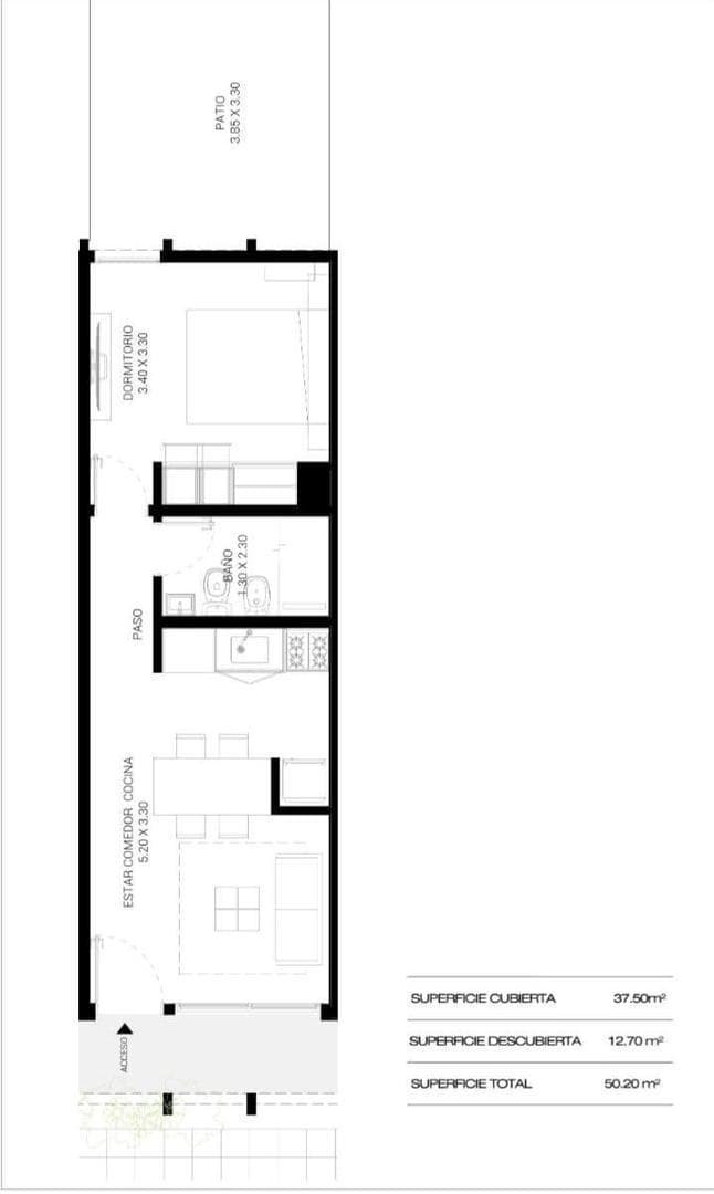
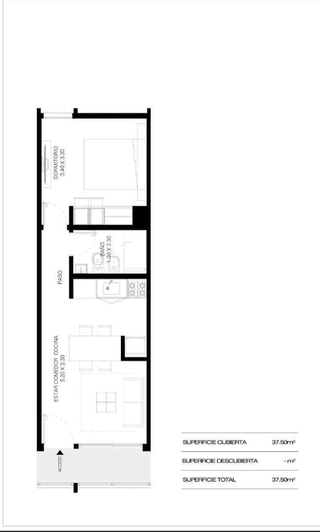
Apartamento · 2 ambientes · 1 dormitorios · 1 baños · 38 m²

Azul 1000, Morón, Morón
USD 53.900
0
En venta

Características principales de la propiedad

Tipo

Apartamento

Dormitorios

1

Baños

1

Ambientes

2

Área Total

38

Área Cubierta

37

Publicado

15 de junio de 2023

Descripción

Entrega en agosto!!!Emprendimiento ubicado en Azul 1046, Morón Sur, entre las calles Boquerón y Jorge Luis Borges. Excelente zona comercial, líneas de transportes cercanas. Desarrollado en tres pisos, son unidades de dos ambientes, todas con balcón, y las del 1er piso cuentan con patio. Excelente ca...

Características

Cerca de transporte publicoBalconCocheraSeguridad 24hsCon expensasApto credito

Ubicación

Planos

Plano 1
Plano 2

Análisis de mercado

Historial de Precios

Evolución del precio desde la publicación original

USD 53.900
Precio actual
Esta propiedad subió un 28.3% su precio desde que se publicó
15 jun - 26 sept
+USD 11.900(+28.3%)
Precio Original
USD 42.000
Precio Actual
USD 53.900
Cambios de Precio
2

Información del agente

I

Inmobiliaria

¿Sos de esta inmobiliaria?

Reclamá tu perfil gratis y conseguí más leads calificados con IA. Sin comisiones, sin límites.

Conocer más

Información sobre los datos

Los derechos de los datos de esta propiedad pertenecen a la inmobiliaria correspondiente. Roomix utiliza múltiples fuentes de portales inmobiliarios como ZonaProp, Argenprop, Mercado Libre y otros para indexar y mostrar propiedades disponibles en Argentina. Esta información se presenta únicamente con fines informativos y de búsqueda.

Propiedades cercanas

Propiedades similares