Departamento 2 Ambientes - Pilar, Gran Bs. As. Norte

Apartamento · 2 ambientes · 1 dormitorios · 1 baños · 63 m²

Edificio Pampa Esquina Martignone 2 Piso UF 15, Pilar, Pilar
USD 63.700
0
En venta

Características principales de la propiedad

Tipo

Apartamento

Dormitorios

1

Baños

1

Ambientes

2

Área Total

63

Área Cubierta

53

Publicado

3 de marzo de 2021

Descripción

EDIFICIO PAMPA CONSTRUYE TEVSA INGENIERIA Y CONSTRUCCION ESQUINA PAMPA Y MARTIGNONE PILAR CENTRO EMPRENDIMIENTO DESDE POZO CADA UNIDAD TIENE SU COCHERA ASOCIADA CON EL MISMO NUMERO.LOS PRECIOS INCLUYEN COCHERALUGARES COMUNES SUM CON PARRILLA Y BAÑO AMPLIA TERRAZA RESERVA 1000 USSBOLETO SE FIRMA A LA...

Características

CocheraCon expensasTerrazaSUMParrillaApto credito

Ubicación

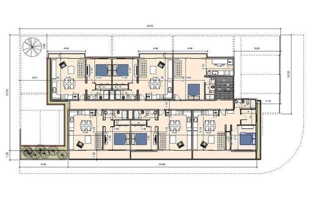
Planos

Plano 1
Plano 2
Plano 3
Plano 4
Plano 5
Plano 6
Plano 7
Plano 8
Plano 9
Plano 10
Plano 11
Plano 12

Análisis de mercado

Información del agente

I

Inmobiliaria

¿Sos de esta inmobiliaria?

Reclamá tu perfil gratis y conseguí más leads calificados con IA. Sin comisiones, sin límites.

Conocer más

Información sobre los datos

Los derechos de los datos de esta propiedad pertenecen a la inmobiliaria correspondiente. Roomix utiliza múltiples fuentes de portales inmobiliarios como ZonaProp, Argenprop, Mercado Libre y otros para indexar y mostrar propiedades disponibles en Argentina. Esta información se presenta únicamente con fines informativos y de búsqueda.

Propiedades cercanas

Propiedades similares