Venta Departamentos en Pilar Edificio Pampa

Apartamento · 2 ambientes · 1 dormitorios · 1 baños · 53 m²

Pilar Departamentos, Pilar, Pilar
USD 81.600
0
En venta

Características principales de la propiedad

Tipo

Apartamento

Dormitorios

1

Baños

1

Ambientes

2

Área Total

53

Área Cubierta

53

Publicado

12 de junio de 2024

Descripción

Venta de departamento 2 ambientes en el exclusivo Edificio Pampa, con entrega prevista para julio de 2025. Unidades disponibles de alta calidad, tipo de construccion con nivel A de aislamiento termico. Cada unidad se entrega con: - SPLIT FRIO/CALOR EN CADA AMBIENTE -VENTANAS DE DOBLE VIDRIO CON MOSQ...

Características

CocheraA estrenarCon expensasApto credito

Ubicación

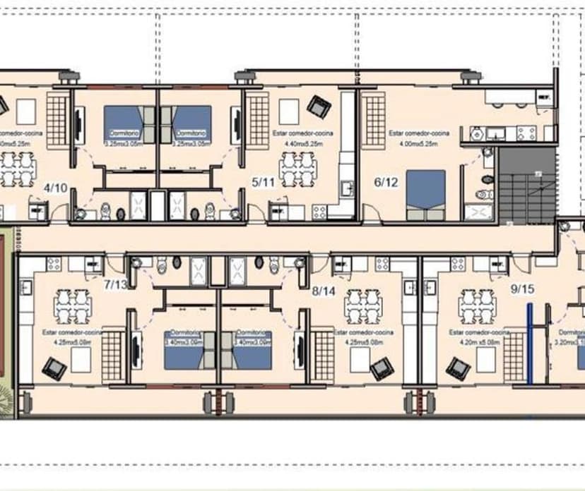
Planos

Plano 1

Análisis de mercado

Historial de Precios

Evolución del precio desde la publicación original

USD 81.600
Precio actual
Esta propiedad subió un 28.1% su precio desde que se publicó
12 jun - 25 sept
+USD 17.900(+28.1%)
Precio Original
USD 63.700
Precio Actual
USD 81.600
Cambios de Precio
2

Información del agente

I

Inmobiliaria

¿Sos de esta inmobiliaria?

Reclamá tu perfil gratis y conseguí más leads calificados con IA. Sin comisiones, sin límites.

Conocer más

Información sobre los datos

Los derechos de los datos de esta propiedad pertenecen a la inmobiliaria correspondiente. Roomix utiliza múltiples fuentes de portales inmobiliarios como ZonaProp, Argenprop, Mercado Libre y otros para indexar y mostrar propiedades disponibles en Argentina. Esta información se presenta únicamente con fines informativos y de búsqueda.

Propiedades cercanas

Propiedades similares