Venta Departamento en Pozo Barrio Almagro 3 Ambientes con Balcón 74.85 m²

Apartamento · 3 ambientes · 2 dormitorios · 1 baños · 73 m²

Acuña de Figueroa al 700, Almagro, Capital Federal
USD 198.450
0
En venta

Características principales de la propiedad

Tipo

Apartamento

Dormitorios

2

Baños

1

Ambientes

3

Área Total

73

Área Cubierta

73

Publicado

7 de abril de 2025

Descripción

VENTA en pozo Barrio Almagro 3 ambientes con balcón 74.85m2 ¡GRAN OPORTUNIDAD!Ubicación privilegiada, a metros de Av. Corrientes y Av. Medrano. 3 ambientes con un total de 73.10m2 de superficie cubierta + Balcón de 4.12m2. Quinto piso, unidad C.Ingresando a la propiedad, Cocina integrada al living c...

Características

Apto profesionalBalconCon expensasPapeles al diaEn barrio privadoCerca de transporte publico

Ubicación

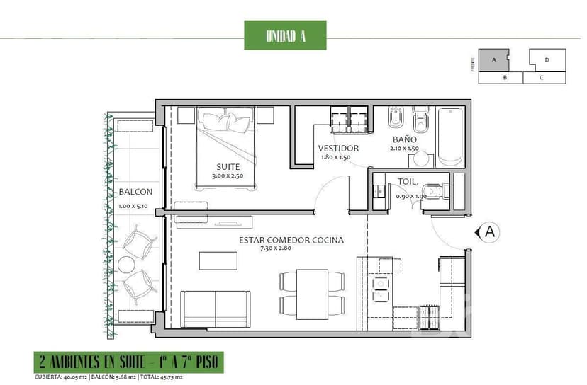
Planos

Plano 1
Plano 2

Análisis de mercado

Información del agente

I

Inmobiliaria

¿Sos de esta inmobiliaria?

Reclamá tu perfil gratis y conseguí más leads calificados con IA. Sin comisiones, sin límites.

Conocer más

Información sobre los datos

Los derechos de los datos de esta propiedad pertenecen a la inmobiliaria correspondiente. Roomix utiliza múltiples fuentes de portales inmobiliarios como ZonaProp, Argenprop, Mercado Libre y otros para indexar y mostrar propiedades disponibles en Argentina. Esta información se presenta únicamente con fines informativos y de búsqueda.

Propiedades cercanas

Propiedades similares