Venta Departarmento 3 Ambientes en Chacarita

Apartamento · 3 ambientes · 2 dormitorios · 2 baños · 79 m²

Concepción Arenal 3935, Chacarita, Capital Federal
USD 193.000
En venta

Características principales de la propiedad

Tipo

Apartamento

Dormitorios

2

Baños

2

Ambientes

3

Área Total

79

Área Cubierta

73

Antigüedad

0 años

Publicado

14 de julio de 2025

Descripción

Venta de Departamento en Construcción 3 Ambientes Chacarita. El Emprendimiento cuenta con 15 unidades. Con fecha de finalización de Obra para Diciembre 2025La Unidad se ubicada en el Piso 5 al Contra frente siendo sus dimensiones de 73 metros cubiertos y 6 metros de balcón. Siendo la relación Preci...

Características

Aire acondicionadoBalconBauleraCocinaLavaderoLiving comedorCocheraDuplexCerca de transporte publico

Ubicación

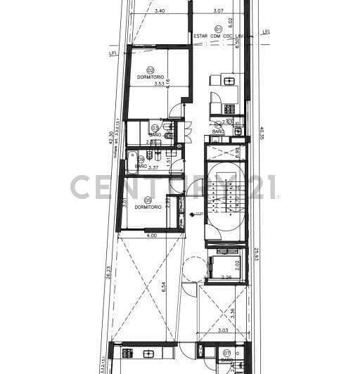
Planos

Plano 1

Análisis de mercado

Historial de Precios

Evolución del precio desde la publicación original

USD 193.000
Precio actual
Esta propiedad subió un 6.2% su precio desde que se publicó
14 jul - 24 sept
+USD 11.300(+6.2%)
Precio Original
USD 181.700
Precio Actual
USD 193.000
Cambios de Precio
2

Información del agente

CENTURY 21 Molina

CENTURY 21 Molina

¿Sos de esta inmobiliaria?

Reclamá tu perfil gratis y conseguí más leads calificados con IA. Sin comisiones, sin límites.

Conocer más

Información sobre los datos

Los derechos de los datos de esta propiedad pertenecen a la inmobiliaria correspondiente. Roomix utiliza múltiples fuentes de portales inmobiliarios como ZonaProp, Argenprop, Mercado Libre y otros para indexar y mostrar propiedades disponibles en Argentina. Esta información se presenta únicamente con fines informativos y de búsqueda.

Propiedades cercanas

Propiedades similares