Venta/financiación - Departamento 1 Dormitorio. Funes. Santa Fe

Apartamento · 3 ambientes · 2 dormitorios · 1 baños · 102 m²

Ruta 9 al 3300 Altura Garita 13. Funes, Funes, Santa Fe
USD 164.430
0
En venta

Características principales de la propiedad

Tipo

Apartamento

Dormitorios

2

Baños

1

Ambientes

3

Área Total

102

Área Cubierta

80

Publicado

19 de febrero de 2025

Descripción

FECHA ESTIMADA DE ENTREGA LOCALES Y OFICINAS AGOSTO 2025. POSIBILIDAD DE ANTICIPO DEL 50% RESTO FINANCIADO EN 12 CUOTAS FECHA ESTIMADA DE ENTREGA VIVIENDAS AGOSTO 2026. POSIBILIDAD DE ANTICIPO DEL 50% RESTO FINANCIADO EN 18 CUOTAS. A DICIEMBRE 2024 AVANCE DE OBRA 30% Descripción General: El proyecto...

Características

PiletaQuinchoCerca de transporte publicoGimnasioIdeal para alquilerEn barrio privado

Ubicación

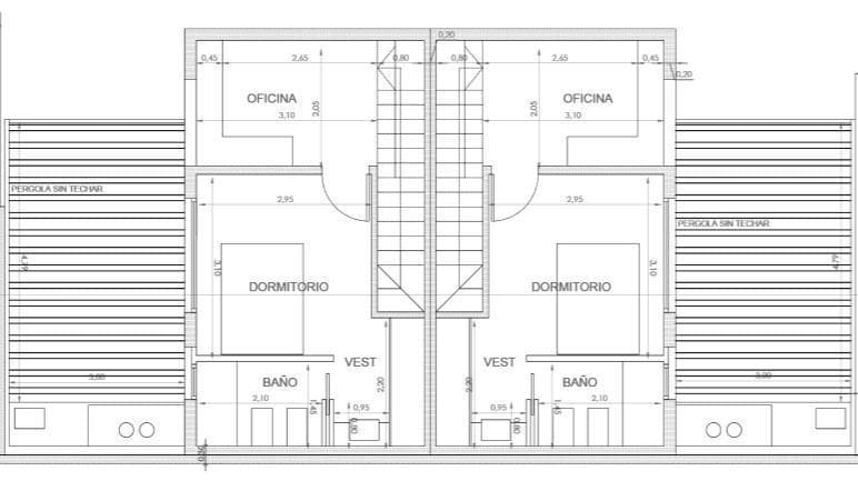
Planos

Plano 1
Plano 2
Plano 3
Plano 4
Plano 5
Plano 6
Plano 7
Plano 8
Plano 9
Plano 10
Plano 11

Análisis de mercado

Historial de Precios

Evolución del precio desde la publicación original

USD 164.430
Precio actual
Esta propiedad subió un 17.1% su precio desde que se publicó
19 feb - 25 sept
+USD 24.062(+17.1%)
Precio Original
USD 140.368
Precio Actual
USD 164.430
Cambios de Precio
2

Información del agente

I

Inmobiliaria

¿Sos de esta inmobiliaria?

Reclamá tu perfil gratis y conseguí más leads calificados con IA. Sin comisiones, sin límites.

Conocer más

Información sobre los datos

Los derechos de los datos de esta propiedad pertenecen a la inmobiliaria correspondiente. Roomix utiliza múltiples fuentes de portales inmobiliarios como ZonaProp, Argenprop, Mercado Libre y otros para indexar y mostrar propiedades disponibles en Argentina. Esta información se presenta únicamente con fines informativos y de búsqueda.

Propiedades cercanas

Propiedades similares