Departamento en San Carlos de Bariloche

Apartamento · 3 ambientes · 2 dormitorios · 2 baños · 173 m²

San Carlos Bariloche - Lago Gutierrez, San Carlos de Bariloche, Rio Negro
USD 648.750
0
En venta

Características principales de la propiedad

Tipo

Apartamento

Dormitorios

2

Baños

2

Ambientes

3

Área Total

173

Área Cubierta

143

Publicado

14 de abril de 2025

Descripción

TERRAZAS GUTIERREZ UN PROYECTO ÚNICO EN LA PATAGONIAPRIMER PISO + DEPENDENCIA Descubrí el mejor complejo a orillas del Lago Gutiérrez, con unidades residenciales y un exclusivo hotel cinco estrellas. Ubicación privilegiada en Bariloche, rodeado de vistas naturales incomparables.Sobre el Lago Gutiérr...

Características

Cerca del marCocheraSeguridad 24hsApto creditoApto profesionalGimnasioIdeal para alquilerCo-working

Ubicación

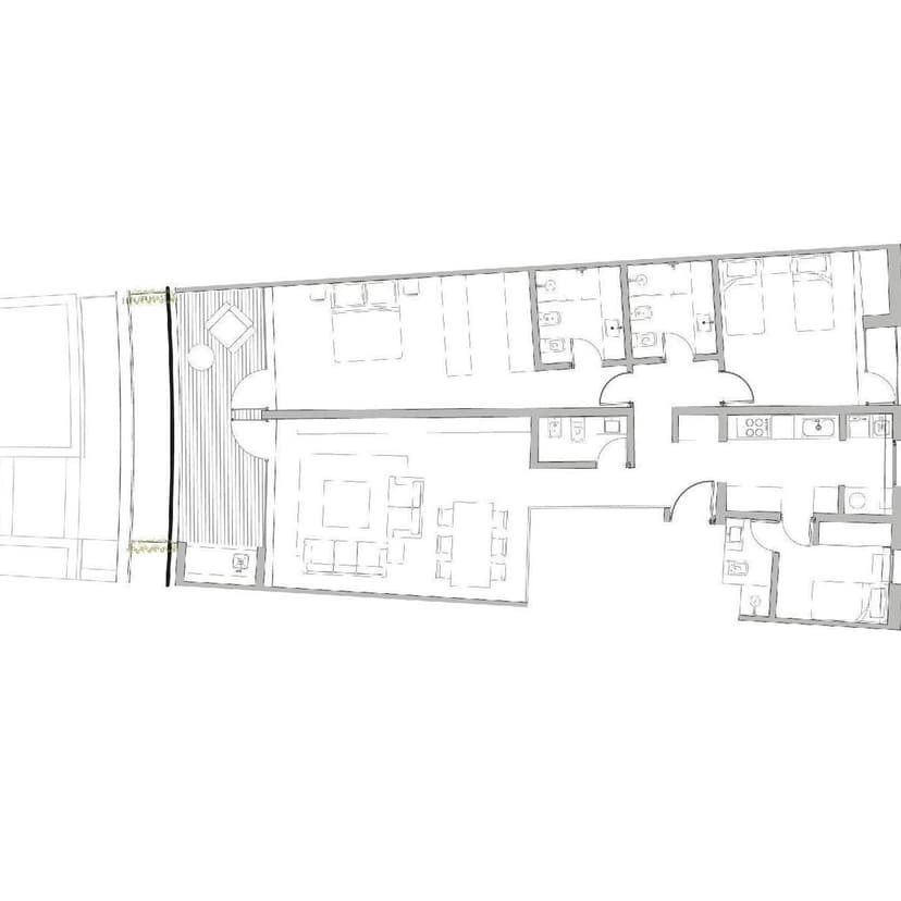
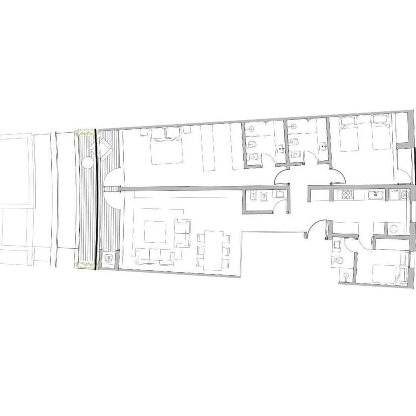
Planos

Plano 1
Plano 2
Plano 3
Plano 4

Análisis de mercado

Información del agente

I

Inmobiliaria

¿Sos de esta inmobiliaria?

Reclamá tu perfil gratis y conseguí más leads calificados con IA. Sin comisiones, sin límites.

Conocer más

Información sobre los datos

Los derechos de los datos de esta propiedad pertenecen a la inmobiliaria correspondiente. Roomix utiliza múltiples fuentes de portales inmobiliarios como ZonaProp, Argenprop, Mercado Libre y otros para indexar y mostrar propiedades disponibles en Argentina. Esta información se presenta únicamente con fines informativos y de búsqueda.

Propiedades cercanas

Propiedades similares