- Palermo Hollywood - 4 Amb Escritorio Balcón Entrega 7/2025

Apartamento · 4 ambientes · 3 dormitorios · 2 baños · 164 m²

Guatemala 5500 1°, Palermo Hollywood, Palermo
USD 615.000
0
En venta

Características principales de la propiedad

Tipo

Apartamento

Dormitorios

3

Baños

2

Ambientes

4

Área Total

164

Área Cubierta

131

Publicado

16 de diciembre de 2022

Descripción

Cuatro ambientes con escritorio, balcón terraza en dobre altura y parrilla Entrega 7/2025unidad 101 1 piso frente orientacion NEanticipo 50 % financiacion en cuotas durante la obraDescripción del emprendimientoHABITA se encuentra en una ubicacion premium en el barrio de Palermo Hollywood. El edifici...

Características

BalconTerrazaApto creditoParrillaOrientacion noresteCon expensas

Ubicación

Planos

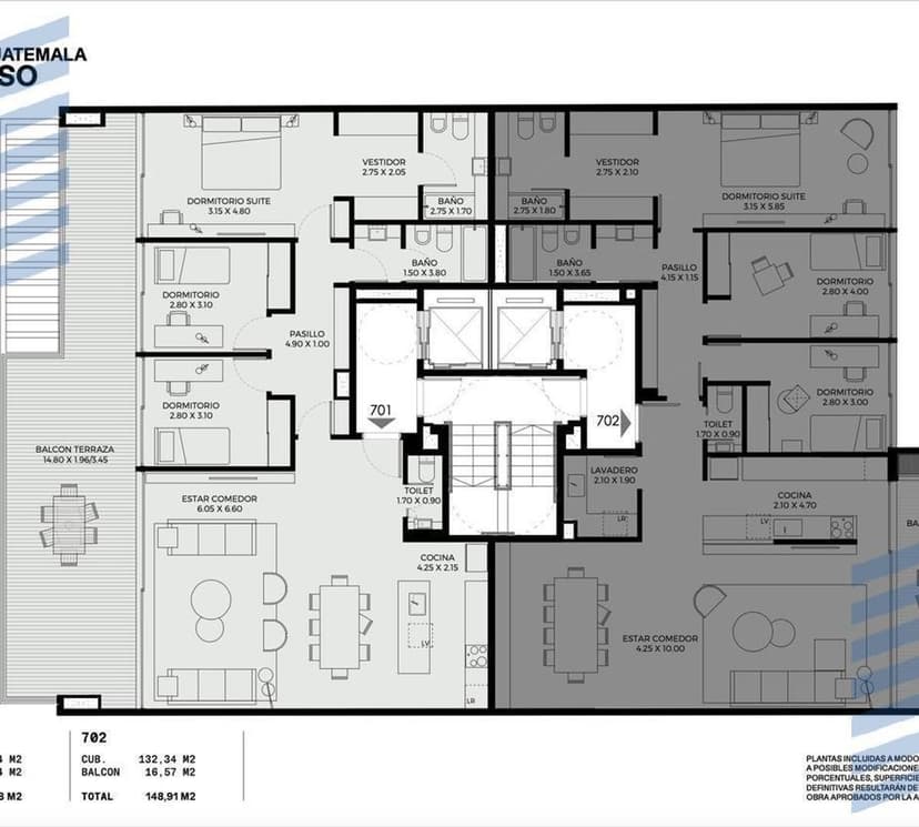
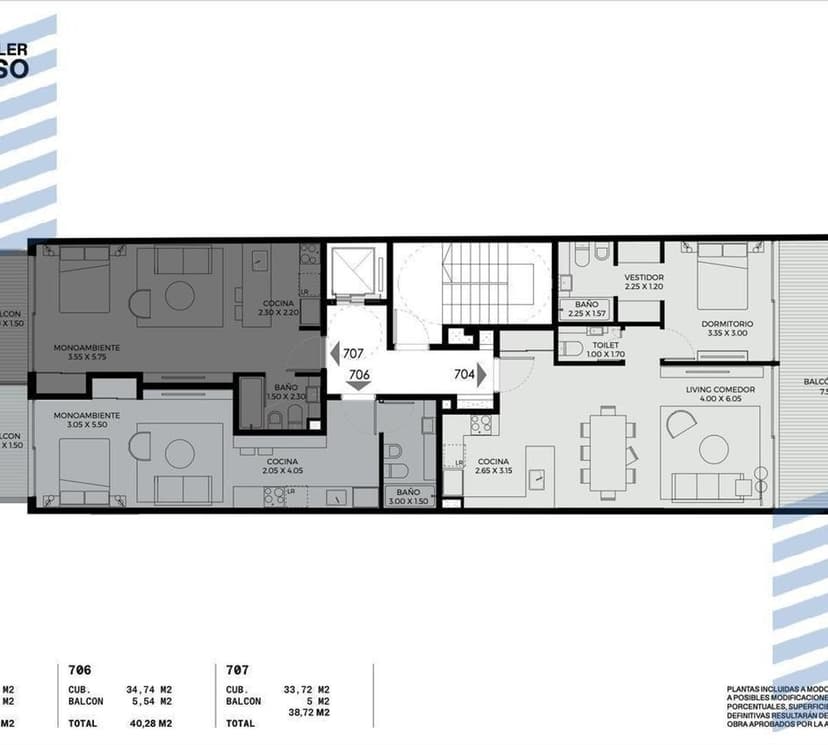
Plano 1
Plano 2
Plano 3
Plano 4
Plano 5
Plano 6
Plano 7
Plano 8
Plano 9
Plano 10

Análisis de mercado

Información del agente

I

Inmobiliaria

¿Sos de esta inmobiliaria?

Reclamá tu perfil gratis y conseguí más leads calificados con IA. Sin comisiones, sin límites.

Conocer más

Información sobre los datos

Los derechos de los datos de esta propiedad pertenecen a la inmobiliaria correspondiente. Roomix utiliza múltiples fuentes de portales inmobiliarios como ZonaProp, Argenprop, Mercado Libre y otros para indexar y mostrar propiedades disponibles en Argentina. Esta información se presenta únicamente con fines informativos y de búsqueda.

Propiedades cercanas

Propiedades similares