Local - Villa Devoto

Local Comercial · 1 ambientes · 3 baños · 218 m²

Beiro al 4800, Villa Devoto, Capital Federal
USD 500.000
+ $ 390.000 expensas
En venta

Características principales de la propiedad

Tipo

Local Comercial

Dormitorios

0

Baños

3

Ambientes

1

Área Total

218

Área Cubierta

203

Publicado

24 de septiembre de 2024

Descripción

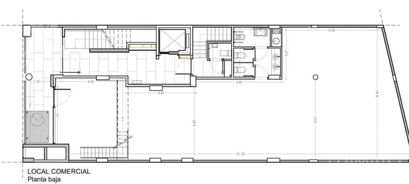
Hermoso local doble altura que ocupa planta baja y el primer piso.Total de metros: 218m2Se entrega con un baño para movilidad reducida, y otros dos para caballero y dama, más espacio de Office.Todo rubro excepto Gastronomía (apto gastronomía liviana, cafetería y rubros de ese estilo)No cuenta con g...

Características

Apto profesionalAccesible para personas con movilidad reducidaEn barrio privado

Ubicación

Planos

Plano 1
Plano 2

Análisis de mercado

Información del agente

I

Inmobiliaria

¿Sos de esta inmobiliaria?

Reclamá tu perfil gratis y conseguí más leads calificados con IA. Sin comisiones, sin límites.

Conocer más

Información sobre los datos

Los derechos de los datos de esta propiedad pertenecen a la inmobiliaria correspondiente. Roomix utiliza múltiples fuentes de portales inmobiliarios como ZonaProp, Argenprop, Mercado Libre y otros para indexar y mostrar propiedades disponibles en Argentina. Esta información se presenta únicamente con fines informativos y de búsqueda.

Propiedades cercanas

Propiedades similares