En Venta a Estrenar Oficina Al Frente/centro en Meridiano Business Center, Pilar

Oficina comercial · 1 ambientes · 1 baños · 59 m²

Meridiano Business Center - Km. 52 - Pilar - G.b. A. Zona Norte, Pilar, Pilar
USD 132.339
0
En venta

Características principales de la propiedad

Tipo

Oficina comercial

Dormitorios

0

Baños

1

Ambientes

1

Área Total

59

Área Cubierta

59

Publicado

20 de febrero de 2025

Descripción

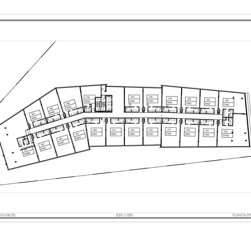
MERIDIANO BUSINESS CENTER - Ultimas unidades a la venta!Oficina en Venta A ESTRENAR con ubicación en el centro del edificio en un 3 pisoOficina con muy buena ubicación dentro del edificio, con amplia vista hacia la Panamericana. Cuenta con 1 baño propio y una kitchenette totalmente terminada. Cielor...

Características

A estrenarCocheraCerca de transporte publico

Ubicación

Planos

Plano 1

Análisis de mercado

Historial de Precios

Evolución del precio desde la publicación original

USD 132.339
Precio actual
Esta propiedad subió un 0.6% su precio desde que se publicó
20 feb - 25 sept
+USD 768(+0.6%)
Precio Original
USD 131.571
Precio Actual
USD 132.339
Cambios de Precio
2

Información del agente

I

Inmobiliaria

¿Sos de esta inmobiliaria?

Reclamá tu perfil gratis y conseguí más leads calificados con IA. Sin comisiones, sin límites.

Conocer más

Información sobre los datos

Los derechos de los datos de esta propiedad pertenecen a la inmobiliaria correspondiente. Roomix utiliza múltiples fuentes de portales inmobiliarios como ZonaProp, Argenprop, Mercado Libre y otros para indexar y mostrar propiedades disponibles en Argentina. Esta información se presenta únicamente con fines informativos y de búsqueda.

Propiedades cercanas

Propiedades similares