Terreno en Barrio Semi Cerrado - Pilar Financiado

Terrenos · 1 ambientes · 440 m²

Barrio Carabassa Pilar, Pilar, Pilar
USD 22.000
+ $ 25.000 expensas
En venta

Características principales de la propiedad

Tipo

Terrenos

Dormitorios

0

Baños

0

Ambientes

1

Área Total

440

Publicado

29 de octubre de 2024

Descripción

Este es el lugar que estabas buscando para construir tu hogar ideal. Estamos hablando de Barrio Carabassa, ubicado en la tranquila zona de Pilar. Este emprendimiento está dedicado al 100% para la paz, seguridad y tranquilidad de sus propietarios. Al contar con una ubicación estratégica, a solo 5 min...

Características

En barrio privadoCerca del hospitalCerca de transporte publico

Ubicación

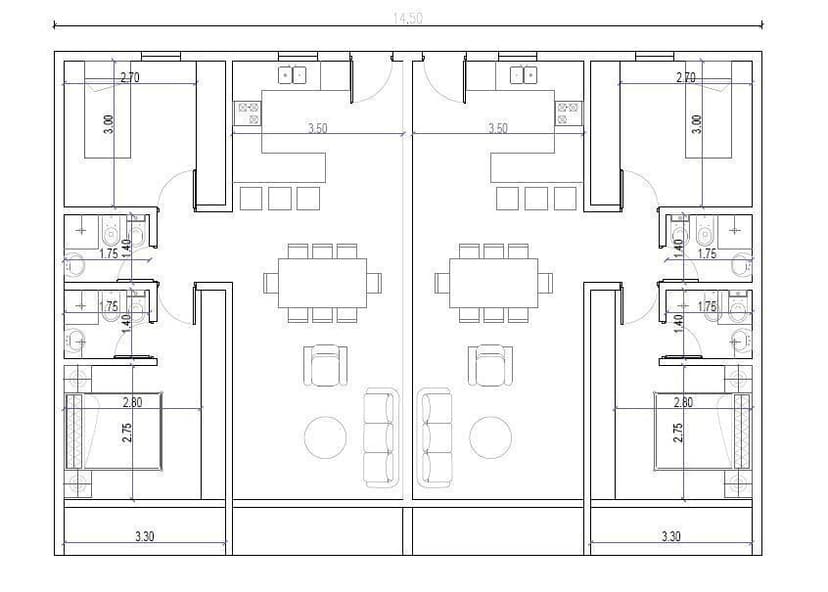
Planos

Plano 1
Plano 2

Análisis de mercado

Información del agente

J. AGUILAR BROKERS INMOBILIARIOS

J. AGUILAR BROKERS INMOBILIARIOS

¿Sos de esta inmobiliaria?

Reclamá tu perfil gratis y conseguí más leads calificados con IA. Sin comisiones, sin límites.

Conocer más

Información sobre los datos

Los derechos de los datos de esta propiedad pertenecen a la inmobiliaria correspondiente. Roomix utiliza múltiples fuentes de portales inmobiliarios como ZonaProp, Argenprop, Mercado Libre y otros para indexar y mostrar propiedades disponibles en Argentina. Esta información se presenta únicamente con fines informativos y de búsqueda.

Propiedades cercanas

Propiedades similares