Via Cramer

Vertical

Cramer 758, Colegiales, Capital Federal
USD 173.840
En venta

Características principales de la propiedad

Tipo

Vertical

Dormitorios

0

Baños

0

Ambientes

0

Antigüedad

0 años

Publicado

15 de septiembre de 2025

Descripción

** VÍA CRAMER: UN NUEVO ESTILO DE VIDA EN COLEGIALES ** VÍA es mucho más que un hogar. Es una experiencia de vida diseñada para quienes buscan confort, seguridad y distinción, en un entorno moderno y conectado con la naturaleza. En Vía Cramer, cada detalle está pensado para brindarte una vida más...

Características

ParrillaPiletaSolariumSUMSeguridad 24hsAgua corrienteDesague cloacalLuzPavimentoEncargado VigilanciaCocheraApto creditoPapeles al diaAmplio living

Ubicación

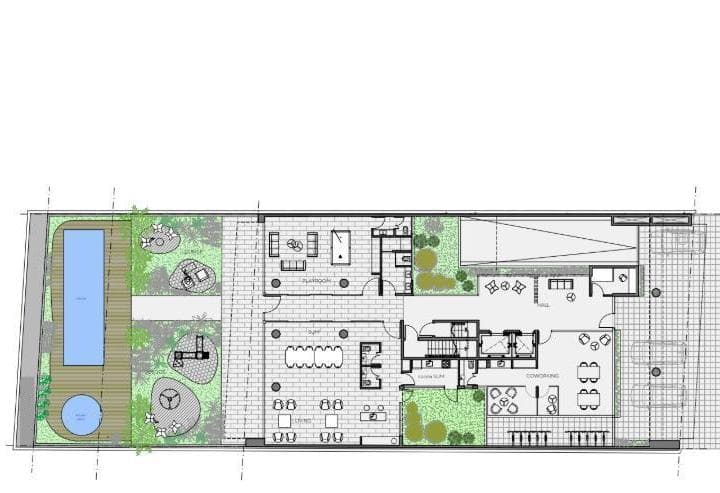
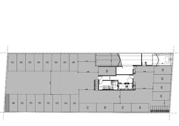
Planos

Plano 1
Plano 2

Análisis de mercado

Información del agente

Soldati Emprendimientos

Soldati Emprendimientos

¿Sos de esta inmobiliaria?

Reclamá tu perfil gratis y conseguí más leads calificados con IA. Sin comisiones, sin límites.

Conocer más

Información sobre los datos

Los derechos de los datos de esta propiedad pertenecen a la inmobiliaria correspondiente. Roomix utiliza múltiples fuentes de portales inmobiliarios como ZonaProp, Argenprop, Mercado Libre y otros para indexar y mostrar propiedades disponibles en Argentina. Esta información se presenta únicamente con fines informativos y de búsqueda.

Propiedades cercanas

Propiedades similares